Colchester Institute

Back to Education
Colchester Institute

This state-of-the-art teaching block for Colchester Institute will act as a new gateway into the campus and provide 50,000 sqft of new classrooms, cafe, seminar and lecture space. It is the first major phase of an ambitious masterplan to rationalise and extend facilities on their site.

The new “gateway” building replaces an existing outdated and inefficient building with a highly sustainable and efficient new three-storey structure.

Creating a welcoming new entrance for staff, students and visitors enhances security and helps way-finding.

Hard and soft landscaping defines the route into the campus and screens the car park.

Currently the approach to the campus is dominated by car parking. Way-finding is difficult and there is a lack of security.

Reorientation of the parking layout  helps establish a new dignified pedestrian and cycle route into the site, as well as a series of external breakout spaces.

 

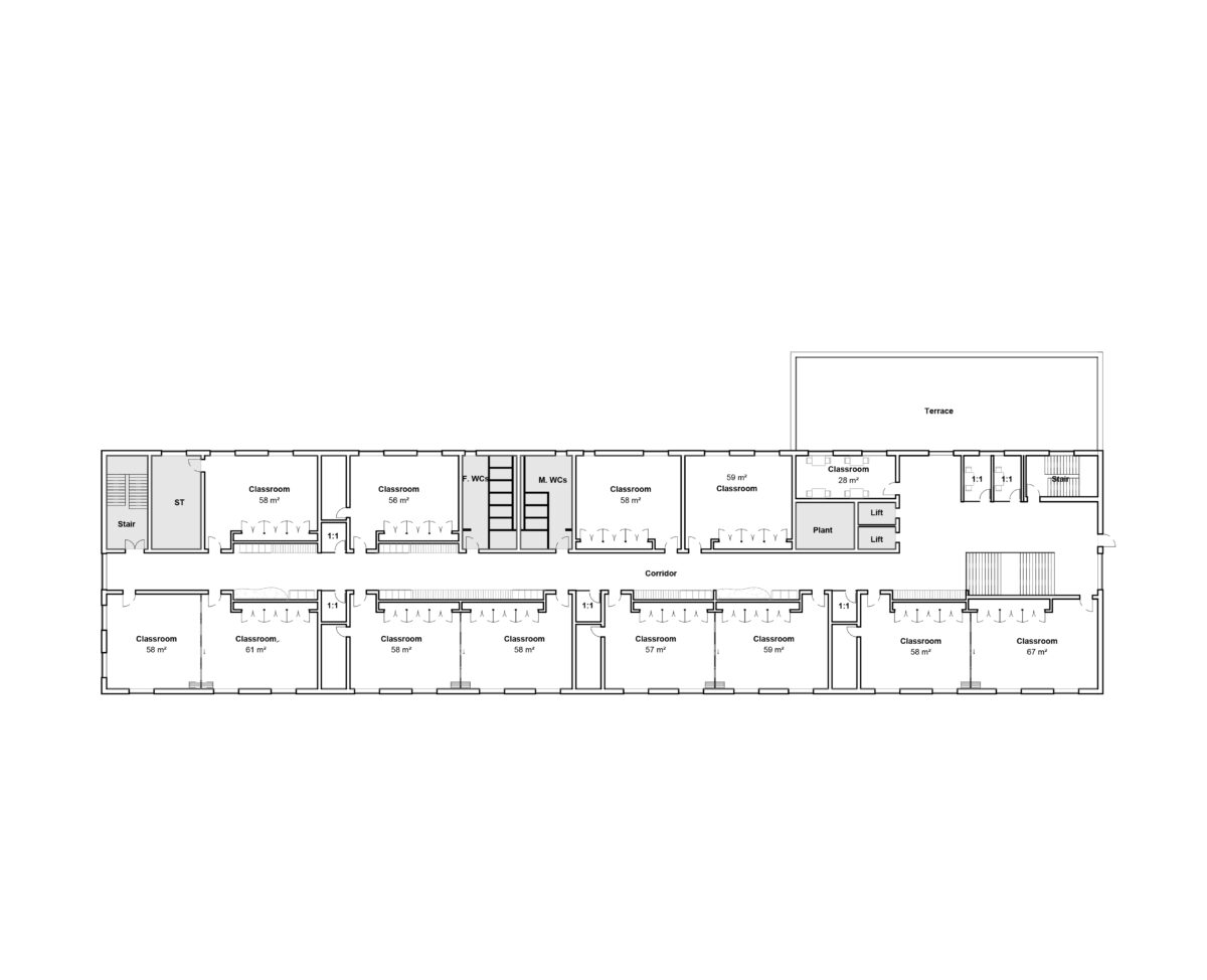
Ground Floor Plan

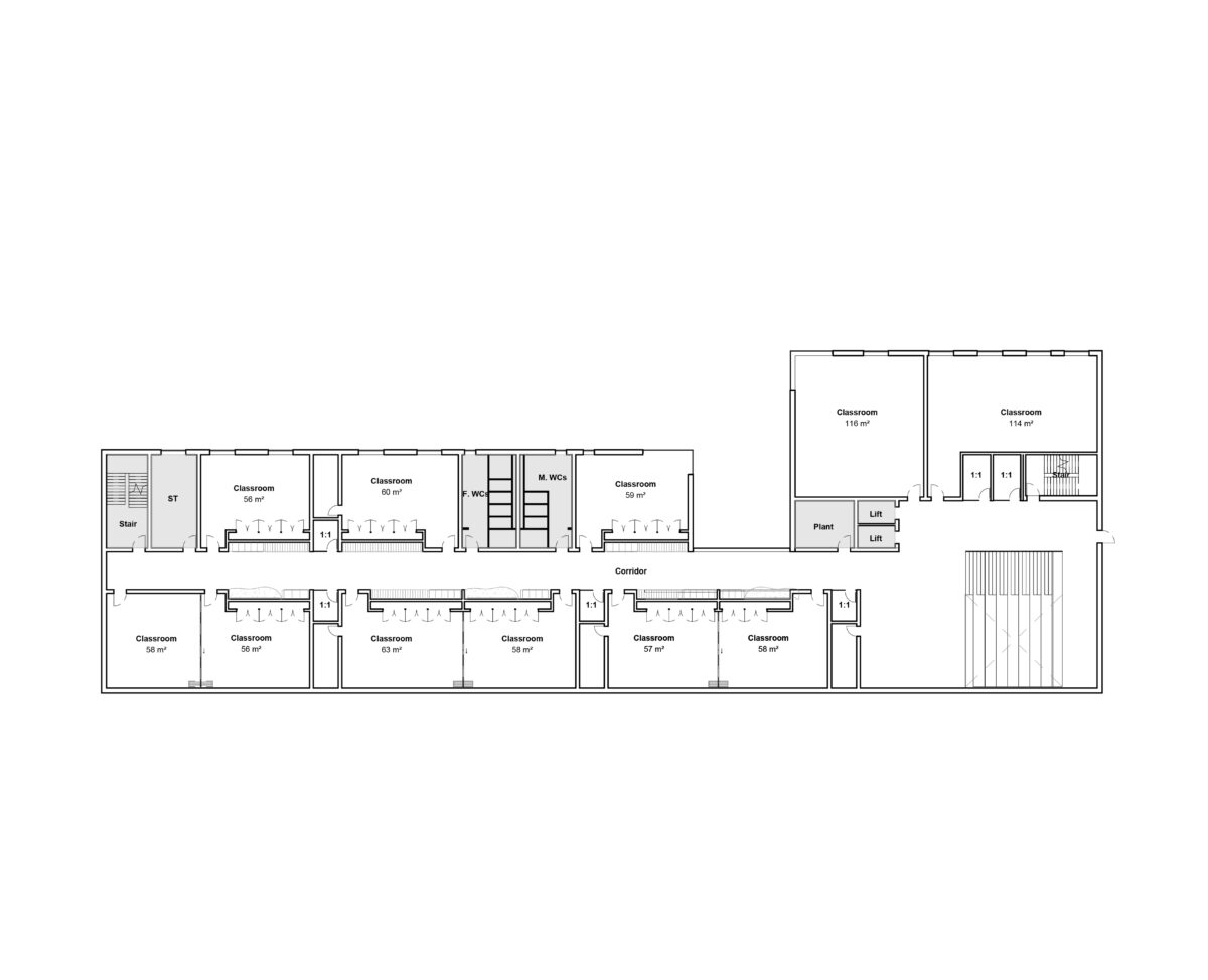
First Floor Plan

Second Floor Plan

Photos of the current car park and approach to the site.